从大学毕业到老年,单身独居人群跨越青年、中年、老年,数量过亿:青年为事业流动,中年求自由,老年因高龄化与子女独立,女性多于男性,城市集中,我们将以合适规划城市居住空间,产品设施配套,“以物理空间为基、精神关怀为核、文化认同为纽带、社会参与为支点,回应单身独居群体‘居所安、情感依、价值归、治理融’的全周期需求。”


一、背景

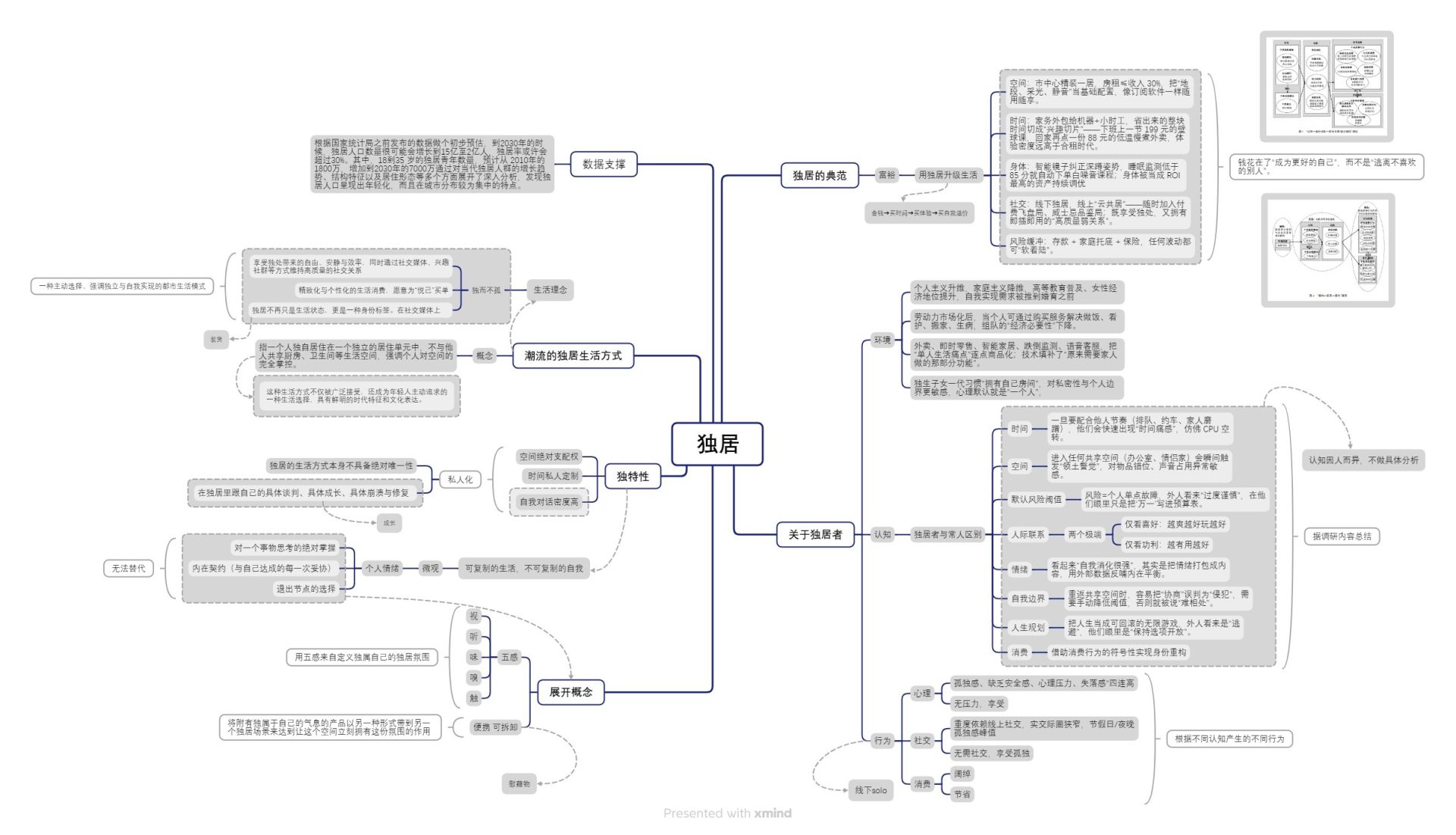
潮流的独居⽣活⽅式,指⼀个⼈独⾃居住在⼀个独⽴的居住单元中,不与他⼈共享厨房、卫⽣间等⽣活空间,强调个⼈对空间的完全掌控。这种⽣活⽅式不仅被⼴泛接受,还成为年轻⼈主动追求的⼀种⽣活选择,具有鲜明的时代特征和⽂化表达。

概况分析

根据国家统计局之前发布的数据做个初步预估,到2030年的时候,独居⼈⼝数量很可能会增⻓到15亿⾄2亿⼈,独居率或许会超过30%。其中,18到35 岁的独居⻘年数量,预计从 2010年的1800万,增加到2030年的7000万通过对当代独居⼈群的增⻓趋势、结构特征以及居住形态等多个⽅⾯展开了深⼊分析,发现独居⼈⼝呈现出年轻化,⽽且在城市分布较为集中的特点。

对潮流的定义

独⽽不孤

享受独处带来的⾃由、安静与效率,同时通过社交媒体、兴趣社群等⽅式维持⾼质量的社交关系;精致化与个性化的⽣活消费,愿意为“悦⼰”买单;⼀种主动选择、强调独⽴与⾃我实现的都市⽣活模式。

独特性

独居的⽣活⽅式本⾝不具备绝对唯⼀性。独居与其他生活的区别在于对空间绝对⽀配权,对时间所有的私⼈定制,与⾃我对话密度⾼。在独居⾥跟⾃⼰的具体谈判、具体成⻓、具体崩溃与修复才是真正的独特所在。


二、生活方式与目标人群

生活方式的介绍

将钱花在了“成为更好的⾃⼰”,⽽不是“逃离不喜欢的别⼈”。在独居⾥跟⾃⼰的具体谈判、具体成⻓、具体崩溃与修复。

目标人群

以“大学毕业至老年”的单身独居者为对象,覆盖18-30岁初就业流动青年、30-50岁城市中产“一人户”、50-65岁“空巢预备”及65岁以上“银发独居”四大段,聚焦生活痛点:物理上,租房频繁、住房老化、社区无障碍不足;精神上,抑郁风险高、就医陪护缺位;文化上,圈层分散、公共活动参与低;社会上,户籍壁垒、邻里关系弱、政策覆盖断裂。调研将循此四轴收集一手数据,梳理现有政府、市场、社区、公益主体已落地的服务与缺口,为后续提案提供可比对、可量化、可嫁接的基准线。

关于独居者

环境

个⼈主义升维,家庭主义降维,⾼等教育普及、⼥性经济地位提升,⾃我实现需求被推到婚育之前

社会现状大部分人不愿意成家,选择自己生活的人变多,单身独居成主流家庭形态

劳动⼒市场化后,当个⼈可通过购买服务解决做饭、看护、搬家、⽣病,组队的“经济必要性”下降

外卖、即时零售、智能家居、跌倒监测、语⾳客服,把“单⼈⽣活痛点”逐点商品化;技术填补“原来需要家⼈做的那部分功能”

独⽣⼦⼥⼀代习惯“拥有⾃⼰房间”,对私密性与个⼈边界更敏感,⼼理默认就是“⼀个⼈”

认知 独居者与常⼈区别

  • 时间:⼀旦要配合他⼈节奏(排队、约⻋、家⼈磨蹭),他们会快速出现“时间痛感”,仿佛 CPU 空转
  • 空间:进⼊任何共享空间(办公室、情侣家)会瞬间触发“领⼟警觉”,对物品错位、声⾳占⽤异常敏感
  • 默认⻛险阈值:⻛险=个⼈单点故障,外⼈看来“过度谨慎”,在他们眼⾥只是把‘万⼀’写进预算表
  • ⼈际联系:越爽越好玩越好/越有⽤越好
  • 情绪:看起来“⾃我消化很强”,其实是把情绪打包成内容,⽤外部数据反哺内在平衡
  • ⾃我边界:重返共享空间时,容易把“协商”误判为“侵犯”,需要⼿动降低阈值,否则就被说“难相处”
  • ⼈⽣规划:把⼈⽣当成可回滚的⽆限游戏,外⼈看来是“逃避”,他们眼⾥是“保持选项开放”
  • 消费:借助消费⾏为的符号性实现⾝份重构

行为

  • ⼼理
    • 孤独感、缺乏安全感、⼼理压⼒、失落感“四连⾼
    • ⽆压⼒,享受
  • 社交
    • 重度依赖线上社交,实交际圈狭窄,节假⽇/夜晚孤独感峰值
    • ⽆需社交,享受孤独
  • 消费
    • 阔绰
    • 节省

问题聚焦

物理问题层面

可靠房源不流通,好地段小户型贵,偏远大单间通勤久,老破小维修多。空间规划不合身,配套断档

精神建设层面

再优秀的人也会有力不从心的时候,情绪没人接,深夜焦虑、生病发烧、灯泡坏了,都得自己扛

生活差异层面

不自主经营兴趣爱好圈子就没有圈子,时间安排压力大,圈层容易分散,公共活动参与低

家庭社会层面

父母家庭以及社会带来的压力,成家或者工作对结婚的细小看法,对伴侣带来的问题而感到不安心

设计洞察

政策支持

以物理空间为基、精神关怀为核、文化认同为纽带、社会参与为支点,回应单身独居群体,从租房政策开始响应国家对于即将步入社会租房的人群出行的政策做起,起先便于大学生毕业独居群体为第一阶段开始向后服务跨越青年、中年、老年,渴求做到激活万亿存量空置房,为社会房产经济提供帮助。

从“补缺”到“前置”,用存量房型做分层干预。

国家层面

把“盘活存量”写进 2024-2025 政策主线
– 国务院 30 号文明确“鼓励用闲置非居住房屋改建宿舍型租赁住房”,首次把“大中小户型灵活分割”纳入 REITs 试点。央行结构性货币工具对“盘活存量租赁”给予 100% 再贷款,利率比普惠租赁再低 50bp,实质鼓励“轻改造-快入市”。

地方层面
  • 规划豁免:北京、深圳对“不改变外轮廓、内部灵活分隔”的改造项目豁免施工图审查,48 小时备案即开工。
  • 梯度补贴:杭州按“每人使用面积”发运营补贴,≤19 ㎡ 部分 1200 元/年·㎡,20-29 ㎡ 800 元,≥30 ㎡ 400 元,直接激励“小户型优先”。
  • 社群配套:成都要求“存量盘活项目”必须配建 5% 共享厨房+客厅,且对全年龄开放,弥补独居者“私-公”过渡空间不足的短板。

社会学视角

趋势不可逆

2020 年全国“一人户”已占 25.4%,比 2010 年跳升 74.8%,城市 30-49 岁未婚比例十年间男性涨 60%+、女性涨 90%+。背后推力是高等教育扩张、女性经济独立、初婚年龄推迟、人口流动与互联网生活形态,形成“单身成默认、结婚需理由”的新规范。

阶层分化明显
  • 高收入独居者
    • 把独居当“自我实现仪式”,追求空间品质、服务配套、社群认同。
  • 中等收入独居者
    • 在“房价-通勤-隐私”三角里权衡,需要可负担、可升级、可退出的房型。
  • 过渡/脆弱型独居者
    • 毕业生、外来务工、老年人,支付能力弱,更依赖非市场或准市场房源
社会网络外部性

独居不等于孤独,但“房型-社区配套-公共服务”决定了社会网络能否被激活。大户型若集中在郊区孤岛,小户型若缺乏共享面积,都会放大“独处-隔离”风险。


三、品牌定义

“一居“是一个覆盖“毕业—银发”全年龄段单身独居者的“四融”生活运营商:以空间更新、社群服务、数字平台三位一体,提供“安居、陪伴、成长、共治”持续解决方案,同时期望能激活万亿存量空置房,打造“一人户”友好型资产,把沉默房产转化为单身独居全周期现金流。

品牌SLOGAN

品牌愿景

让每一套空置房都成为独居者“一个人也活得很好”的城市据点,激活资产、激活生活、激活城市微循环。让空房子有人住、让一个人也能住得好,把“单身独居”变成城市赚钱、社会省钱、大家开心的新买卖。


四、设计

LOGO

一居

万法归一,一生万物

”一“作为汉字的基本意是一个人,“一”在道家意义上,既是宇宙的本源,也是修身的理想状态,体现了“道”从无形到有形、从静到动、从一到万的生成逻辑​。然而“居”是回到一,又不死守一;在一之中,也与万物同屋。

服务计划/规划

系统闭环

大(房源)→ 中(快装)→ 小(产品)

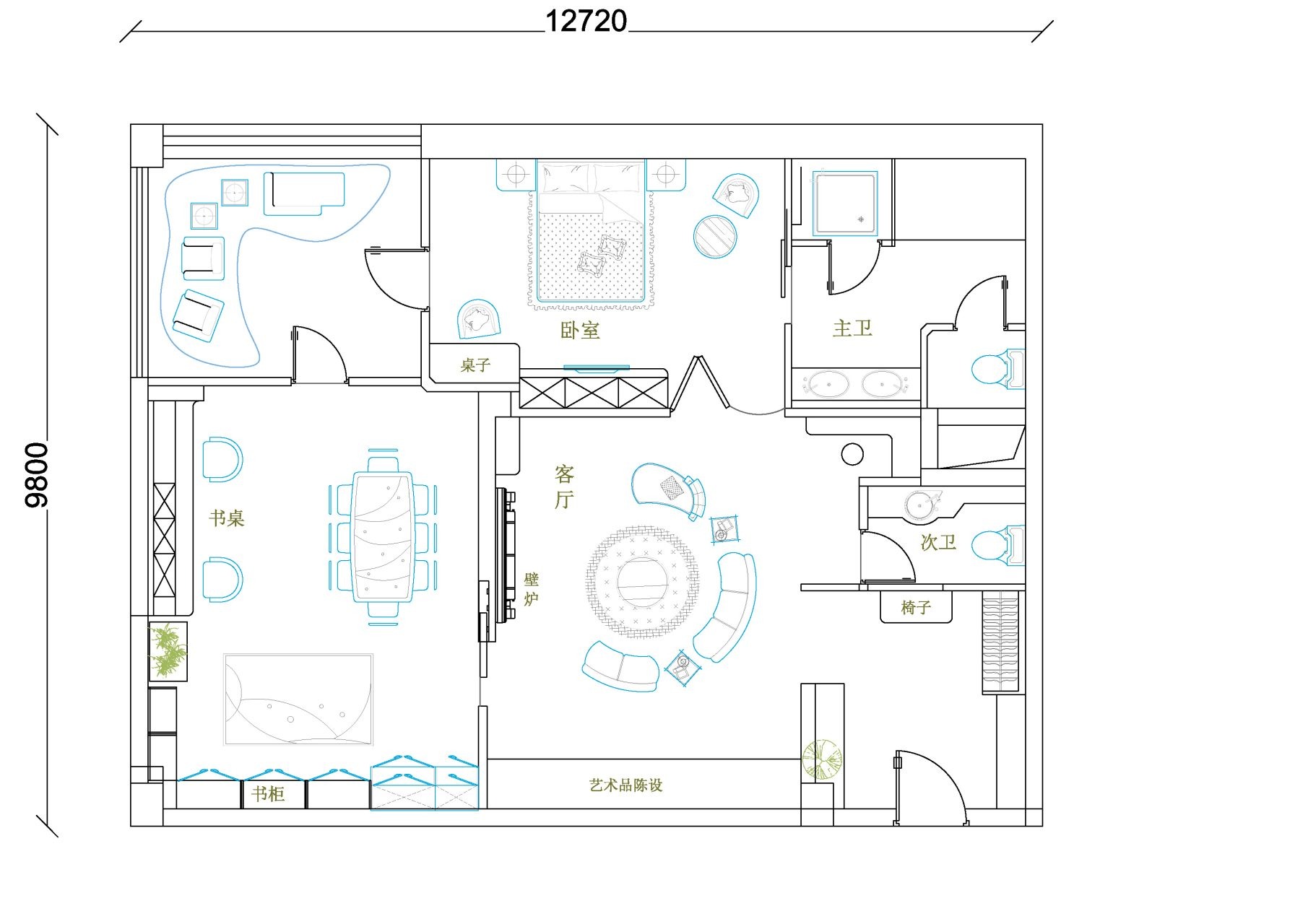
房型设计

线上服务页面设计

独居沙发产品

以平菇为原型,将最大最柔软的一面作为与人的接触面,中空设计可作为散热作用,就像平菇的凉感,给予舒适与散热的效果,久坐不湿热

独居氛围灯具

本款蘑菇伴居灯以自然中灵动的蘑菇为设计原型,从自然意象中提取“蘑菇群落”的生长感与陪伴感。采用“呼吸式光亮此起彼伏”的光效设计,不同蘑菇灯体的亮度、明暗节奏错落交替,如同生命体的呼吸韵律。各蘑菇灯体与枝干采用可拔插的连接方式,独居人士在起夜时,可将任意蘑菇灯体从连接处取下,作为手持小夜灯使用,为夜间路径提供局部照明。还模拟“摘取蘑菇”的生活仪式感,为每盏蘑菇灯体设置“拍拍亮”触发机制。让照明交互从“按键操作”升级为“自然动作的情感互动”,在趣味操作中强化人与产品的情感连接。

气味提醒香氛机

模仿蘑菇散发孢子,能根据不同时段释放对应气味:饭点时飘出模拟饭菜的香气,提醒按时用餐;睡前切换为薰衣草助眠香调,营造放松的入睡氛围;学习工作时段则释放柠檬清新气味,帮助提神、提升专注力,用自然的嗅觉信号,悄悄帮独居者把生活节奏拉回正轨。

独处蘑菇


五、课程总结与感想

本次生活方式与产品设计课程,我们聚焦“单身独居”这一新兴趋势,围绕其生活痛点与空间需求,提出“一居”生活系统构想。通过政策、社会与人群研究,尝试以空间更新、社群服务与数字平台回应独居者的全周期需求。设计不仅是解决问题,更是为“一个人也是家”提供可能。感谢老师在研究方法与方案推演上的耐心指导,使得我们第一次把“生活方式”真正做成了系统提案,在这轮课受益良多。

输入您的邮箱,即可及时了解本站最新资讯。

3 条回复

  1. 当一人居成为一种终生的生活方式,人类的社会组织结构也将面临着巨大挑战。让我们在这一个品牌中首先接受这种生活方式的存在,且将主流和非主流的分野进行搁置。
    设计范畴拓展到了户型设计,且将社会资源纳入到城市管理的设计范畴,提高了社会总资源的利用度,只是忽视了人性的复杂。在产品、界面的设计中,看到了开胃的蘑菇,这个统一的元素犹如品牌的IP一样贯穿始终,这是一个系统化的设计。可以是在形象和风格的统一性上,还没能掌握得很好。
    未来可期,一人独居。

  2. Hazel 的头像
    Hazel

    中户型设计中狭长过道较多,浪费空间较大。

发表回复

您的电子邮箱地址不会被公开。 必填项已用*标注